Instandsetzung Friedhof Uetliberg, Planerwahlverfahren
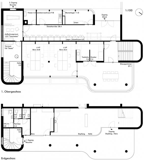
Das Aufbahrungsgebäude des Friedhofes, das symbolische Herzstück der Anlage: eine Schnittstelle zwischen Leben und Tod, einen Ort der Lebenden in der Totenstadt. Um dieser Lesart Ausdruck zu verleihen, wird eine komplett neue Raumabfolge für die Trauergäste errichtet und deren Aufenthaltsbereiche vollständig von Büronutzung und Betriebsräumen abgetrennt. Ein neuer Eingang im Erdgeschoss führt anstelle der bestehenden WC-Anlagen in einen stimmungsvollen, zweistöckigen Raum mit sorgfältig inszeniertem Treppenaufgang.
Info
Projektnummer: 21-00
Studienauftrag: 2021
Auftraggeber: Stadt Zürich Amt für Hochbauten, Zürich
Visualisierung: Architekten-Kollektiv
