Schulhaus Nideren, Trogen – Studienauftrag
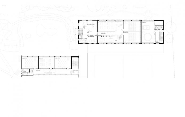
Die heutige Schulanlage Nideren liegt unterhalb des Dorfkerns auf einer Hangebene von Trogen. Sie besteht aus zwei zueinander versetzten orthogonalen Längsbauten mit zwei ruhigen Satteldächern, welche über einen gedeckten Zugang erschlossen und miteinander verbunden werden. Sie fügen sich mit einem eingeschossigen Höhenversatz in die nach Westen abfallende Hügellandschaft selbstverständlich ein und spannen mit ihrer Stellung zueinander zwei grosszügige Aussenraumflächen mit unterschiedlichen Aufenthaltsqualitäten auf zwei Niveaus auf. Auf dem oberen Niveau lädt eine grossflächige ebene Wiese zum Spielen, Springen und Austoben ein. Auf dem unteren Niveau bietet der angelegte Erlebnispfad, die kleinteiligen Spielplatzgeräte, das Gartenhäuschen und der Wohnwagen ein breites Spiel- und Aufenthaltsangebot. Diese aussenräumlichen Qualitäten und städtebauliche klare Haltung sollen bewahrt und mit dem Konzept des Weiterbauens im Bestand erhalten bleiben.
Mit der geplanten Vergrösserung der Schulanlage soll das bestehende nur teils genutzte Dachgeschoss des Nordtraktes (Turnhalle) zu vollwertigen Räumen ausgebaut werden, indem das Dach auf die baurechtlich maximale Traufhöhe angehoben wird. Zusätzlich wird auf und um den bestehenden Bühnenraum am nördlichen Ende dieses Gebäudes das Volumen soweit ergänzt, dass der Bau einen einheitlichen und gleichwertigen Charakter erhält. Mit der baurechtlichen Ausreizung der Gebäudelänge und Traufhöhe entsteht somit ein sehr kompakter Baukörper. Besonders im nördlichen Bereich gewinnt der Aussenraum an Qualität, indem er mit der Gleichwertigkeit aller Gebäudeseiten klar gefasst und geklärt wird. Das kompakte Volumen des Südtraktes ist städtebaulich bereits präzise gesetzt, wirkt in sich stimmig und schlüssig, so dass seine äussere Erscheinung belassen wird.
Info
Projektnummer: 17-15
Studienauftrag: 2017
Auftraggeber: Gemeinde Trogen AR
Visualisierung: nightnurse images, Zürich
